Work
Contact
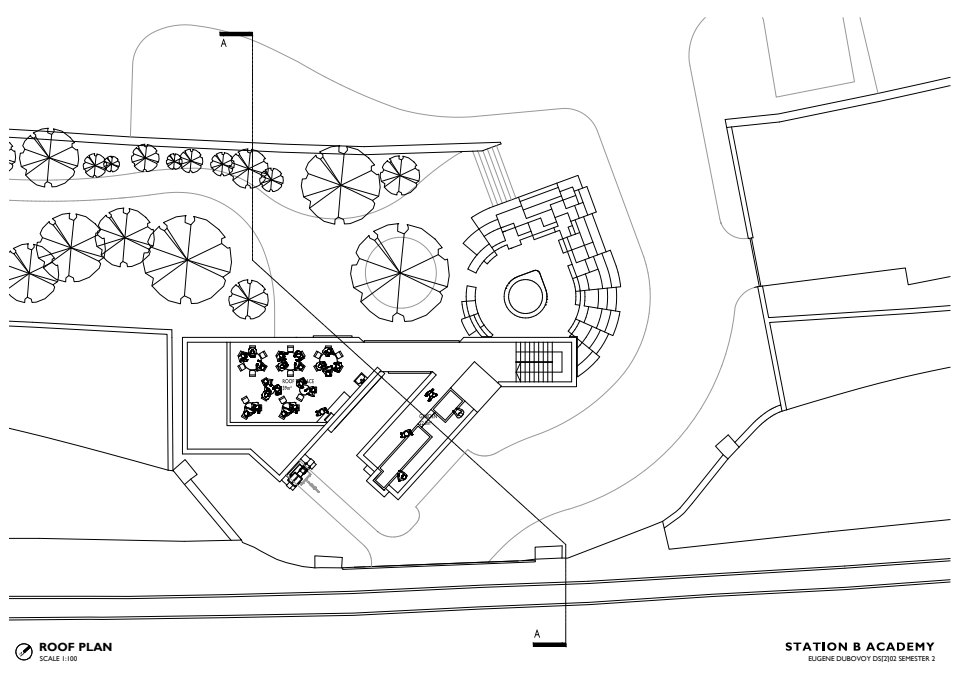
GENE DUBOVOY STUDENT PORTFOLIO
BSc Architectural Technology
GENE DUBOVOY STUDENT PORTFOLIO
Design Studio 2017 AutoCAD / SketchUp / Physical
Design Studio Year 2
BA Architecture
University of Westminster
Up Next:
Technical Studies 2016 SketchUp