GENE DUBOVOY STUDENT PORTFOLIO

BSc Architectural Technology

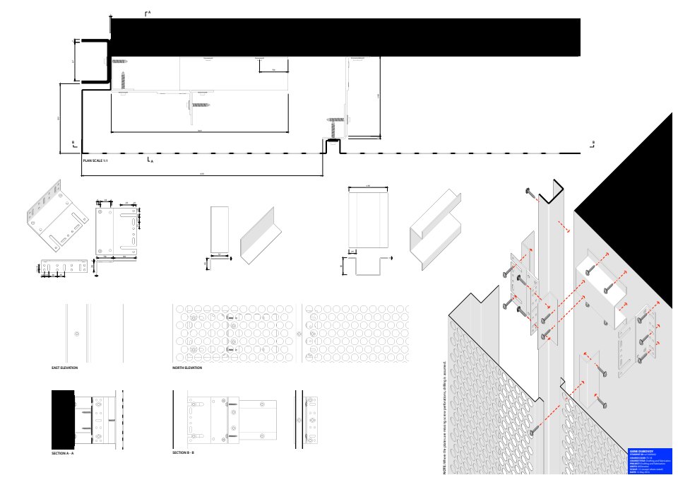
GENE DUBOVOY STUDENT PORTFOLIO

Technical Studies 2016 SketchUp

— Connection detail of cladding panel —

Technical Studies Year 1
BA Architecture
University of Westminster

Up Next:

Design Studio 2016 SketchUp / Physical